Opportunité de Rénovation, belle localisation
Ce bien est situé : Chemin de Vieux-Condé 35 - 7600 Péruwelz
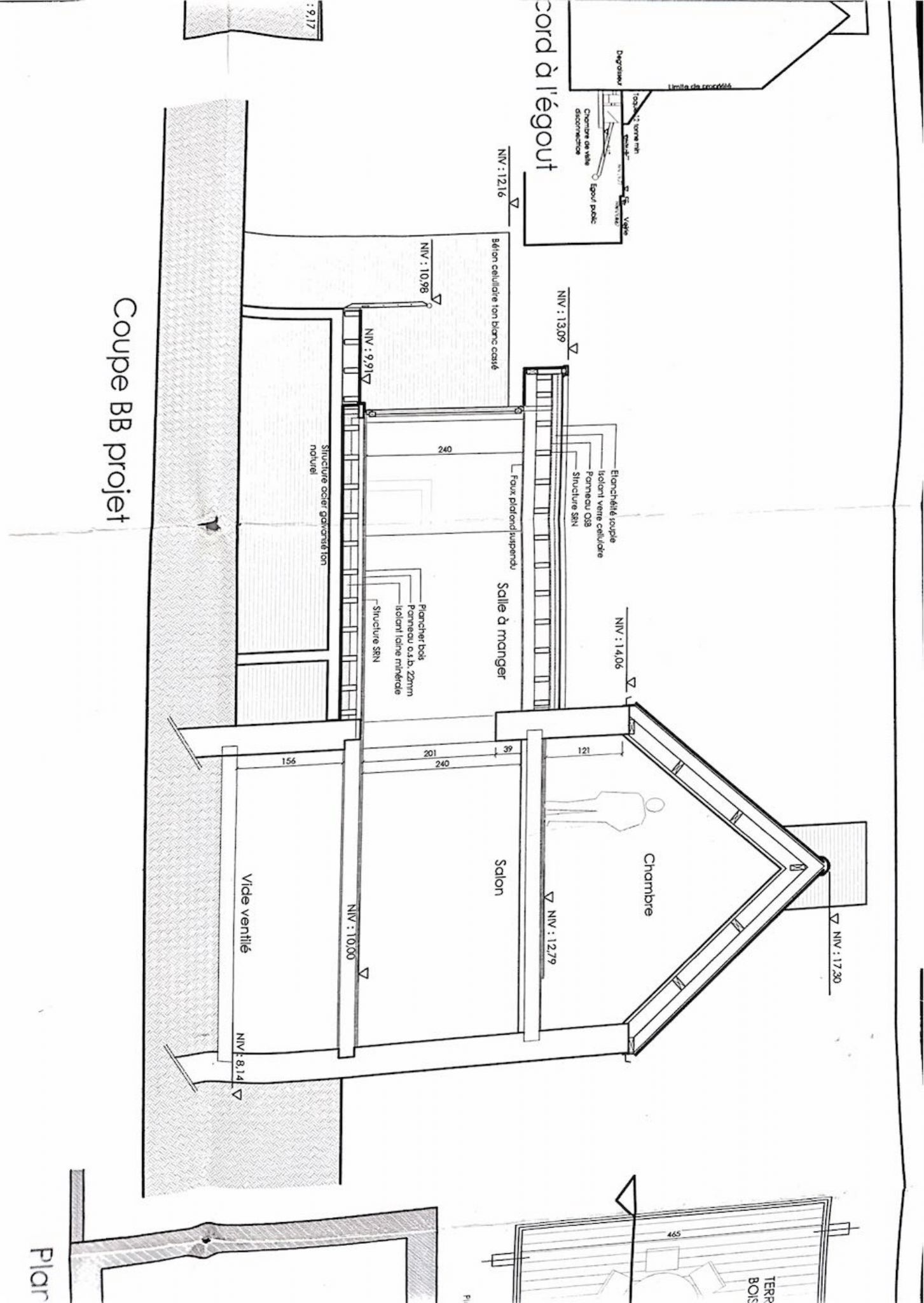
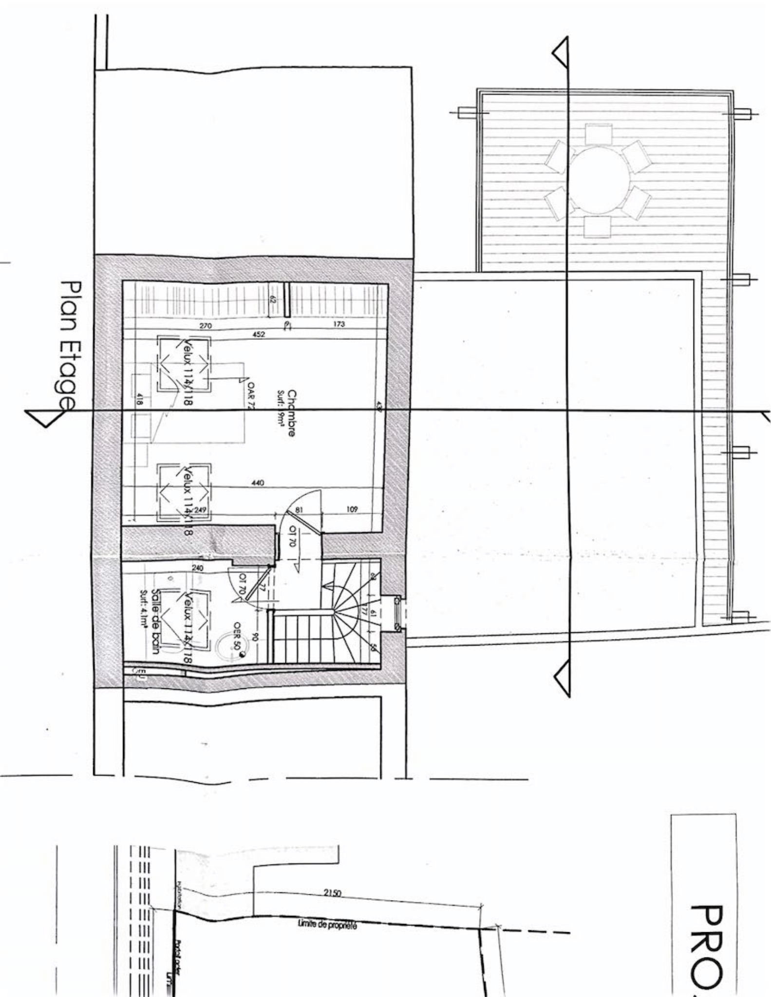
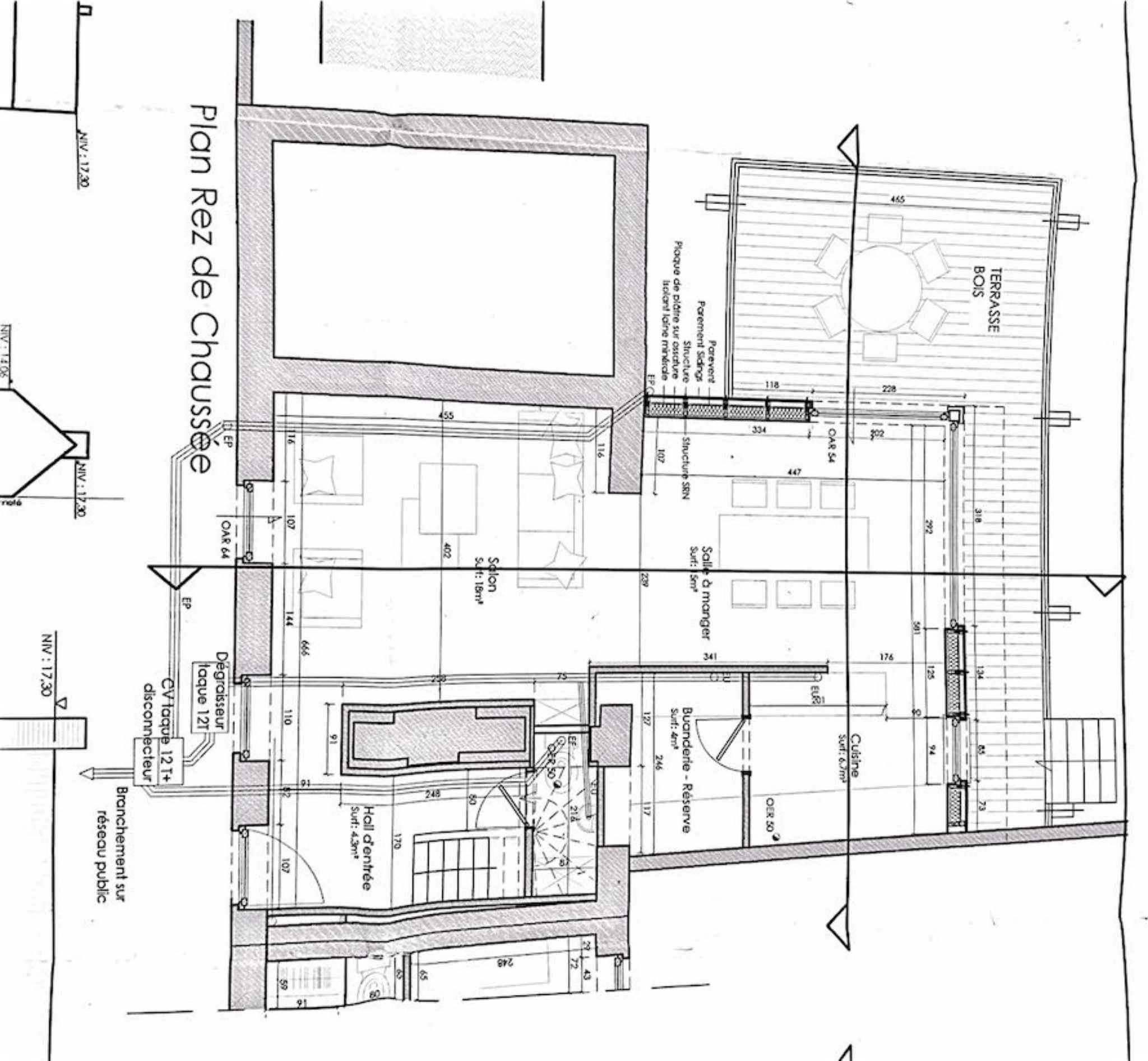
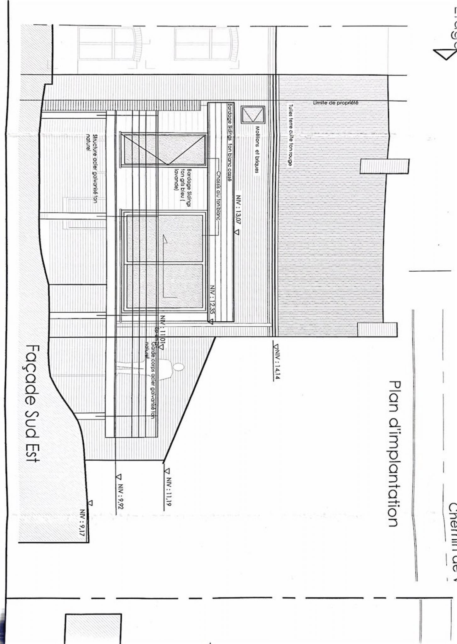
Créez votre maison selon vos goûts et besoins. Cette propriété dont la rénovation a commencé dans les règles de l'art est située dans un agréable quartier proche de la frontière française et du bois de Bonsecours. Cette bâtisse s'étend une surface habitable de minimum 115 m², actuellement en état de gros œuvre ouvert et offrant une toile vierge pour votre imagination et vos projets de rénovation.
Sur un terrain de 205 m², avec jardin exposé sud et possibilité d’aménagement paysager.Gros œuvre ouvert avec les travaux de restauration déjà entamés, offrant une grande flexibilité pour les modifications futures.
Plans d’aménagement disponibles, possibilité de créer plusieurs chambres, salle de bains, cuisine ouverte, espace de vie lumineux, et bien plus encore.
Passage latéral de 3,5 mètres possible.
Points forts :
- Transformez cette maison selon vos envies, des choix de matériaux aux finitions, en passant par l’agencement des pièces.
- En investissant dans cette propriété et en la rénovant, vous pouvez considérablement augmenter sa valeur marchande.
- Que vous souhaitiez une maison moderne, classique ou contemporaine, cette propriété peut être adaptée à tous les styles.
- Les étapes les plus lourdes de la rénovation ont déjà été entamées dont la toiture, vous permettant de vous concentrer sur les détails et les finitions.
- Profitez de la possibilité d’acquérir une maison à un prix compétitif, avec un potentiel de plus-value important après rénovation.
Ne manquez pas cette occasion rare de transformer cette maison en l’habitation de vos rêves. Contactez-nous dès aujourd'hui pour organiser une visite et laissez-vous inspirer par le potentiel de bien!
Exemption PEB et de contrôle électrique : en raison de l'absence de système de chauffage et de châssis, un certificat PEB n'est pas requis pour cette propriété.
RC: 108€
Prix indicatif : 45.000 euros
Les propriétaires se réservent souverainement le droit d'apprécier la hauteur et la qualité des offres.
Informations communiquées à tire indicatif et non contractuelles.
